
Floor Plans
Whether you are a Homeowner or General Contractor looking for a head start on a renovation, or a Realtor looking to make floor plans for a sale, we make accurate layouts quickly.
Beginning with a site visit, all measurements will be taken within the property to enable accurate drafting. Typically, this process will take anywhere from 3-6 hours and will require full access to the interior of the home during this time.
If drawings are being prepared for a renovation and design drawings are required, a design consultation will also be performed during the initial site visit.
Floor Plans
Pricing for residential and commercial floor plans in the Halifax and surrounding regions. Great for Homeowners, General Contractors and Real Estate Agents.
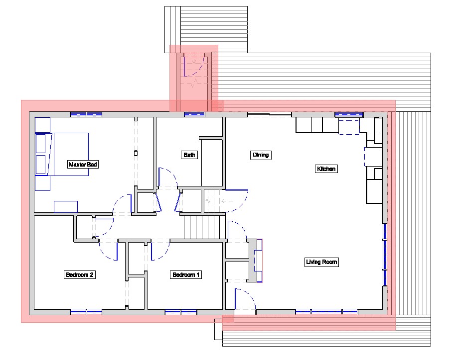
Basic Floor Plans
Includes all Walls, Doors, Windows and Staircases. No interior fixtures or exterior plans included.
- Includes Site Measurement*
- Up to 1000sq. ft.
- Unlimited rooms
- 2 day turnaround
- Floor Plans only
Detailed Floor Plans
Includes all Walls, Doors, Windows, Staircases, Kitchen Layout, Bathroom Layouts and Deck Layout.
- Includes Site Measurement*
- Up to 3000sq. ft.
- Unlimited rooms**
- 4 day turnaround
- Floor Plans + Existing Kitchen & Bath Elevations
*Site measurement is included within a 75km range of Halifax. If outside of this area, additional travel feels may apply.
**Unlimited rooms includes only 1 kitchen and unlimited baths. If more than 1 kitchen is required, an additional fee of $199 will be added.


