CAD Drafting & Design in Nova Scotia
Welcome to CADGuy, your trusted partner for professional CAD Drafting services in Halifax, Nova Scotia and the surrounding areas.
With 17+ years of CAD Drafting experience and a wide array of drafting abilities, I provide a variety of services both in-person and remotely depending on your project needs.
Interested in seeing some more of my work? Take a look at my gallery to see some previous projects I have worked on. If you are looking to see something specific, feel free to reach out via the contact page
Manufacturing
- Custom Millwork Shop Drawings
- Custom Cabinetry Shop Drawings
- Countertop Shop Drawings
- Furniture Shop Drawings
Residential
- Kitchen & Bath Design
- Closet Design
- Interior Floorplans
- Interior 3D Renderings
Commercial
- Warehouse Racking Diagrams
- Office Interior Planning
- Custom Lobby Designs
- Reception Desk Designs
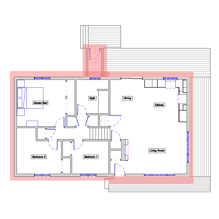
Floor Plans
Pricing for residential and commercial floor plans in the Halifax and surrounding regions. Great for Homeowners, General Contractors and Real Estate Agents.
The new STRRA regulations in Nova Scotia effective September 30th 2024 may require your Short Term Rental to submit a floor plan. See pricing below for available packages for floor plans for your Short Term Rental.
Basic Floor Plans
Includes all Walls, Doors, Windows and Staircases. No interior fixtures or exterior plans included.
- Includes Site Measurement*
- Up to 1000sq. ft.
- Unlimited rooms**
- 2 day turnaround
- Floor Plans only
Detailed Floor Plans
Includes all Walls, Doors, Windows, Staircases, Kitchen Layout, Bathroom Layouts and Deck Layout.
- Includes Site Measurement*
- Up to 3000sq. ft.
- Unlimited rooms**
- 4 day turnaround
- Floor Plans + Existing Kitchen & Bath Elevations
*Site measurement is included within a 75km range of Halifax. If outside of this area, additional travel feels may apply.
**Unlimited rooms includes only 1 kitchen and unlimited baths. If more than 1 kitchen is required, an additional fee of $199 will be added.
Questions?
Find answers to some of my more common questions
Can't find the answer you are looking for? Email me at chris@CADGuy.ca






